樋井川木村貸店舗 1号室
| 賃料 | 550,000円 |
|---|---|
| 共益費 | ー |
| 契約面積 | 173.21㎡(52.40坪) |
| 所在地 | 福岡県福岡市城南区樋井川3丁目1-4 |
| 交通 | 電車 福岡市営地下鉄七隈線 「七隈駅」 徒歩31分 バス 西鉄バス 長尾変電所前 徒歩2分 |
| 構造 | 鉄骨造 1階建 |
| 区画種別 | ・ 店舗 |
・ 塾・学校・教育関係/塾・スクール ・ 美容・健康・介護 ・ 物販関係/小売・物販 ・ 重飲食 ・ その他飲食店 ・ バー・クラブ・スナック
平置き駐車場14台無料
物件情報
| 物件名 | 樋井川木村貸店舗 1号室 |
|---|---|
| 所在地 | 福岡県福岡市城南区樋井川3丁目1-4 |
| 交通(電車) | 福岡市営地下鉄七隈線 「七隈駅」 徒歩31分 |
| 交通(バス) | 西鉄バス 「長尾変電所前」 徒歩2分 |
| 築年月 | 1989年11月 |
| 構造 | 鉄骨造 1階建 |
| 所在階 |
| 賃料 | 550,000円 |
|---|---|
| 共益費 | ー |
| 敷金 | 5.0ヶ月 |
| 敷引 | ー |
| 保証金 | ー |
| 礼金 | ー |
| その他費用 | |
| 内装居抜料 | ー |
| 内装居抜料備考 | |
| 坪単価 | 10,496円 |
| 駐車場 | あり 無料 |
| 駐車場備考 | 敷地内14台 |
| 家賃保証会社 | 要 |
| 保険等 | 要 |
| 区画種別 | ・ 店舗 |
|---|---|
| おすすめ業種 | ・ 塾・学校・教育関係/塾・スクール ・ 美容・健康・介護 ・ 物販関係/小売・物販 ・ 重飲食 ・ バー・クラブ・スナック ・ その他飲食店 |
| 物件設備 |
水道/その他、
下水/その他、
ガス/その他、
エレベーター/なし |
| 区画設備 | 床仕様/スケルトン、 分割利用/不可 |
| その他設備・特記事項 | 2年未満で解約の際は賃料2か月分の違約金 |
| 取引態様 | 媒介(仲介) |
|---|---|
| 契約形態 | 定期借家契約 10年 |
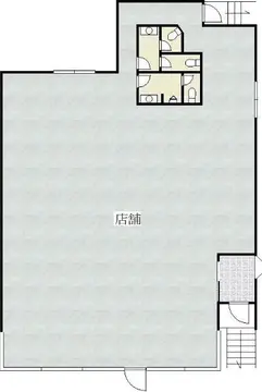
| 契約面積 | 173.21㎡(52.40坪) |
| 現況 | スケルトン |
| 造作譲渡 | なし |
| 引渡時期 | 即入居可 |
| 情報更新日 | 2026年03月10日 |
| 次回更新予定日 | 2026年03月23日 |
外観写真・共用写真
内観写真・間取図
概算費用
初期費用
| 敷金 | 5.0ヶ月 |
|---|---|
| 保証金 | ー |
| 礼金 | ー |
| 1ヶ月分賃料 | 550,000円 |
| 1ヶ月分共益費 | ー |
| 内装居抜料 | ー |
| 1ヶ月分駐車場料金 | あり 無料 |
| 仲介手数料 | 550,000円 |
| 合計 | 3,850,000円〜 |
月額費用
| 賃料 | 550,000円 |
|---|---|
| 共益費 | ー |
| 駐車場料金 | あり 無料 |
| 合計 | 550,000円〜 |
- 1円未満のは端数が出た場合、小数点以下は切り捨てとします。
- 合計金額は概算です。ご契約の前に必ず確認してください。
- 別途、保証会社のご加入が必要となります。
- 別途、保険加入や看板代等が必要になる場合がございます。
- 物件により、水道光熱費などその他費用がかかる場合がございます。
- 契約開始日までに必要書類等が揃わない場合は、鍵のお渡しはできませんのでご了承ください。
地図
お問い合わせをお待ちしています。
薬院店 法人・テナント
福岡県福岡市中央区高砂
1丁目1-27 プレミールホサカ2F
- TEL:092-791-3652
- 営業時間:10:00~19:00
- 定休日:無休
株式会社明和不動産
宅建免許番号:国土交通大臣(3) 第8432号
所属団体:(公社)福岡県宅地建物取引業協会
公正取引協議会:(一社)九州不動産公正取引協議会
- お問い合わせ物件番号
- MTS-2128






