鴨池ACアネックスビル D号室
| 賃料 | 232,000円 |
|---|---|
| 共益費 | 込み |
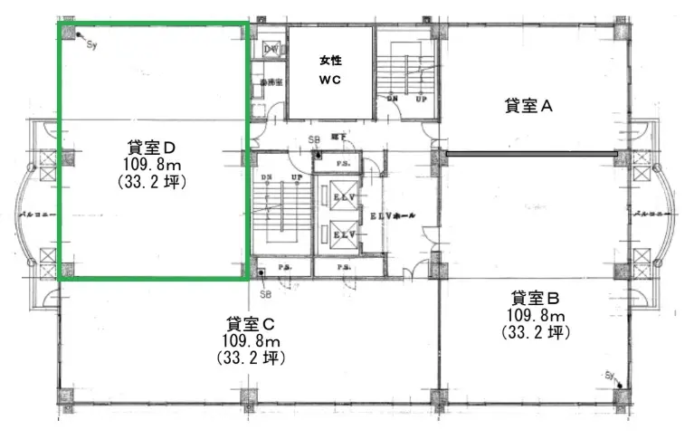
| 契約面積 | 109.80㎡(33.21坪) |
| 所在地 | 鹿児島県鹿児島市鴨池新町5-1 |
| 交通 | 電車 鹿児島市電1系統 「涙橋駅」 徒歩19分 鹿児島市電1系統 郡元駅 徒歩20分 鹿児島市電2系統 郡元駅 徒歩20分 バス 鹿児島市営バス ニュータウン中央 徒歩2分 |
| 構造 | SRC(鉄骨鉄筋コンクリート) 11階建 |
| 区画種別 | ・ 事務所 |
・ 事務所
南向きの角部屋です!
物件情報
| 物件名 | 鴨池ACアネックスビル D号室 |
|---|---|
| 所在地 | 鹿児島県鹿児島市鴨池新町5-1 |
| 交通(電車) | 鹿児島市電1系統 「涙橋駅」 徒歩19分 鹿児島市電1系統 「郡元駅」 徒歩20分 鹿児島市電2系統 「郡元駅」 徒歩20分 |
| 交通(バス) | 鹿児島市営バス 「ニュータウン中央」 徒歩2分 |
| 築年月 | 1987年10月 |
| 構造 | SRC(鉄骨鉄筋コンクリート) 11階建 |
| 所在階 | 6階 |
| 用途地域 | 近隣商業地域 |
| 賃料 | 232,000円 |
|---|---|
| 共益費 | 込み |
| 敷金 | 6.0ヶ月 |
| 敷引 | ー |
| 保証金 | ー |
| 礼金 | ー |
| その他費用 | |
| 内装居抜料 | ー |
| 内装居抜料備考 | |
| 坪単価 | 6,986円 |
| 駐車場 | あり 11,000円 |
| 駐車場備考 | 区画台数に制限があります |
| 家賃保証会社 | 不要 |
| 保険等 | 不要 |
| 区画種別 | ・ 事務所 |
|---|---|
| おすすめ業種 | ・ 事務所 |
| 物件設備 |
水道/公営、
下水/公共下水、
ガス/その他、
エレベーター/あり |
| 区画設備 | エアコン/あり、 トイレ/あり(共有)、 給湯室/あり(共有)、 流し台/あり(共有)、 床仕様/その他、 警備/なし、 シャッター/なし、 照明器具/あり、 分割利用/不可 |
| その他設備・特記事項 |
| 取引態様 | 媒介(仲介) |
|---|---|
| 契約形態 | 普通借家契約 2年 |
| 契約面積 | 109.80㎡(33.21坪) |
| 現況 | 事務所仕様 |
| 造作譲渡 | なし |
| 引渡時期 | 即入居可 |
| 情報更新日 | 2026年04月28日 |
| 次回更新予定日 | 2026年05月11日 |
外観写真・共用写真
内観写真・間取図
概算費用
初期費用
| 敷金 | 6.0ヶ月 |
|---|---|
| 保証金 | ー |
| 礼金 | ー |
| 1ヶ月分賃料 | 232,000円 |
| 1ヶ月分共益費 | 込み |
| 内装居抜料 | ー |
| 1ヶ月分駐車場料金 | あり 11,000円 |
| 仲介手数料 | 232,000円 |
| 合計 | 1,867,000円〜 |
月額費用
| 賃料 | 232,000円 |
|---|---|
| 共益費 | 込み |
| 駐車場料金 | あり 11,000円 |
| 合計 | 243,000円〜 |
- 1円未満のは端数が出た場合、小数点以下は切り捨てとします。
- 合計金額は概算です。ご契約の前に必ず確認してください。
- 別途、保証会社のご加入が必要となります。
- 別途、保険加入や看板代等が必要になる場合がございます。
- 物件により、水道光熱費などその他費用がかかる場合がございます。
- 契約開始日までに必要書類等が揃わない場合は、鍵のお渡しはできませんのでご了承ください。
地図
お問い合わせをお待ちしています。
鹿児島中央駅西口広場前店 法人・テナント
鹿児島鹿児島市武
1丁目1-2 JR九州ホテル鹿児島北館1F
- TEL:099-821-5119
- 営業時間:10:00~18:00
- 定休日:水曜【GW休業:5/2~5/6】
株式会社明和不動産
宅建免許番号:国土交通大臣(3) 第8432号
所属団体:(公社)鹿児島県宅地建物取引業協会
公正取引協議会:(一社)九州不動産公正取引協議会
- お問い合わせ物件番号
- MTS-2804












